Kleiner Flur und doch viel Platz?

Wir haben einen kleinen Flur mit vielen Türen, doch auch wir brauchen dort Stauraum. Vielleicht fällt Ihnen ja was ein, wie wir doch ein wenig Platz für Schuhe bekommen. Der Flur darf aber nicht enger werden, damit alle vier Türen weiterhin gut zugänglich sind. Im Moment stehen dort 2 kleine Kommoden, da geht aber nicht wirklich viel rein und an der einen Tür steht die Kommode auch schon im Durchgang. Denn die Kommode ist schon zu tief. In der anderen Ecke sieht die Kommode verloren aus und bietet wenig Stauraum.

Termin zum Aufmaß bei Ihnen in der Wohnung

Wenn Sie sich mit solchen Fragen an uns wenden am Telefon oder per E-Mail, dann ist der nächste Schritt, dass wir einen Termin bei Ihnen vor Ort vereinbaren. Denn wir verschaffen uns dann einen Raumeindruck, damit wir wissen was sind schon vorhanden Farben, Holzarten, Fliesen. Dann vermessen wir Ihren Raum mit einem Laser. Und wir stellen oftmals noch Fragen. Was soll rein in den Schrank, welche Schuhgröße haben Sie. Brauchen Sie versteckte Kabelführung im Schrank. Was ist finanzieller Rahmen. Was ist ihnen besonders wichtig, wenn wir für Sie arbeiten. Mit diesen ganzen Informationen fahren wir wieder zurück in unsere Möbeltischlerei. Dort werden dann die Informationen in Stillarbeit am Computer zu einem Entwurf zusammen gefügt.

Aufmass kleiner Flur

Aufmass kleiner Flur, Zustand vor dem Renovieren

Aufmass Telefonschrank

Aufmass Telefonschrank im kleinen Flur, voher

Termin bei uns im Beratungsraum

Nach der Stillarbeit am Computer sind fotorealistische Entwürfe von Ihrem Raum entstanden. Damit Sie auch sehen können, was wir schon beim 1. Termin bei Ihnen im Raum sehen konnten (wir haben dann schon ein Bild im Kopf) laden wir Sie zu uns ein und zeigen Ihnen am Bildschirm einen Entwurf von Ihrem neuen Flur mit den Einbauschränken. Wo auch bei Ihnen zu hause sinnvoller Stauraum verborgen ist, der in Zukunft schön genutzt werden kann zeigen wir Ihnen dann am Bildschirm. Dazu präsentieren wir Ihnen ausgewählte Muster aus unserer Materialbibliothek. Denn eine Vorauswahl haben wir schon getroffen, da wir wissen wie es bei Ihnen zu Hause aussieht. (Türen oder Treppen oder Fliesen, dazu soll ja das neue Möbel passen, wenn nicht alles verändert wird) Durch unsere jahrelange Erfahrung haben wir inzwischen einfach ein Gespür dafür. Natürlich erfahren Sie in dem Beratungsgespräch auch, was Ihre neuen Möbel kosten werden. Dazu haben wir verschiedene Varianten für Sie vorbereitet, denn es ist eigentlich wie beim Autokauf mit den Preisen. Sie können aus verschiedenen „Modellen“ wählen und auch die Innenausstattung beliebig wählen. Das Material der Möbel kann auch auch frei gewählt werden (nicht nur die Farbe sondern auch die Holzarten oder Lackierung oder Kunststoffbeschichtung)

Einbauschränke im Flur

Platz für Einbauschänke im kleinen Flur, so könnte es bald aussehen

Entwurf Schuhschrank

Entwurf Schuhschrank, einfache Variante

Entwurf Schuhschrank

Entwurf Schuhschrank mit Materialkombination

Entwurf Schuhschrank

Entwurf Schuhschrank mit offenem Fach für Dekoration

Sie haben sich für Möbel von uns entschieden

Nun geht es ins Detail… Die bunten Bilder sind Grundlage für die exakte Inneneinteilung Ihrer Schränke. Dazu fertigen wir Zeichnungen von Ihrem neuen Möbel an, damit Sie auch vorher wissen wie groß jedes Fach ist. Dazu dienten auch beim ersten Gespräch die Fragen, was Sie unterbringen möchten und welche Schuhgröße Sie haben… wir fragen nichts ohne Grund.

Auf den Zeichnungen können Sie die Kabelführung im Telefonschank erkennen. Die Steckdosen in der Wand sind weiterhin nutzbar, auch wenn ein Schrank davor steht. Sie brauchen dann nicht den Schrank von der Wand rücken, damit Sie an die Steckdosen kommen sondern die Kabelführung geht versteckt im Schrank nach oben. Die Böden im Schrank haben auch eine Aussparung, so dass Sie das Kabel gut nach oben zum Telefon verlegen können. In der oberen Abdeckplatte ist eine schöne Kabeldurchführung enthalten, damit das Kabel direkt zum Telefon geführt werden kann. Kein Kabelwirrwarr mehr, wo sich Staub drauf sammeln dann hinter dem Schrank.

Die Schränke stehen direkt bis an die Wand, da wir die Sockel der Schränke so ausbilden, dass keine Dreck-Ecken entstehen können. Der Schuhschrank geht auch bis zur Decke und versteckt auch die „Beule“ in der Decke. Diese Beule kommt von der darüber liegenden Treppe, die zum nächsten Stockwerk führt.

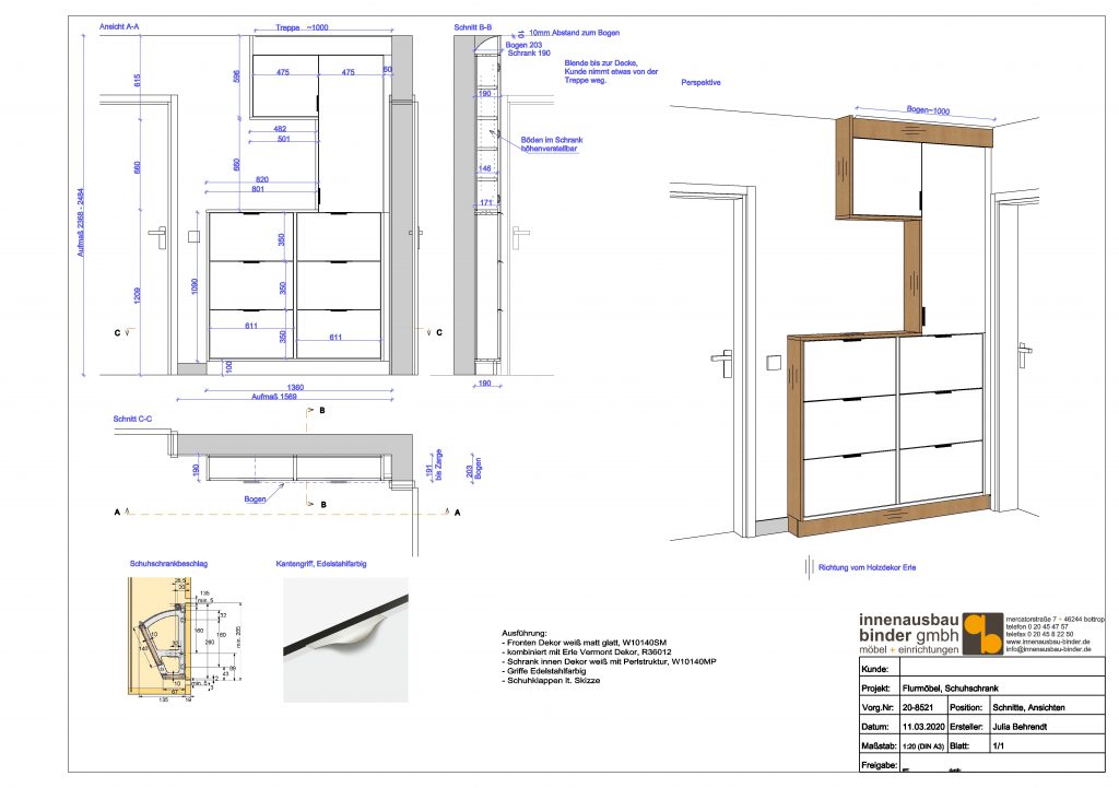
Zeichnung Schuhschrank

Zeichnung von dem neuen Schuhschrank

Zeichnung Telefonschrank

Zeichnung Telefonschrank, trapezförmig, viel Platz

 

Fertigung Ihrer neuen Möbel bei uns in der Möbeltischlerei

Wenn nun alle Details geklärt sind und Sie zufrieden sind mit den Zeichnungen, dann starten wir bei uns in der Tischlerei mit der Fertigung Ihrer neuen Einbaumöbel. Dazu werden die passenden Materialien von unseren Lieferanten angeliefert und dann geht es los. Jedes Loch ist geplant und kann nun von unseren Tischlergesellen gebaut werden. Diese machen das mit großer Leidenschaft, denn sie sind schon langjährig bei uns und haben viel Erfahrung im Möbelbau.

Montage Ihrer Möbel

Unsere Mitarbeiter denken auch mit und gerade bei der Montage sind sie kleine Künstler, denn nachher sieht es so aus, als wäre alles aus einem Guß. Dafür sind aber gerade die kleinen Ecken sehr aufwändig… dort wird alles an die immer krummen Wände und Decken angepasst. Die kleinen Leisten, die Ihnen das Putzen erleichtern (weil der Schrank bis zur Decke oder Wand geht) werden exakt geschnitten. Das bedeutet vor Ort ausschneiden der Fußleisten oder wie in diesem Fall die Treppen aus der Decke verstecken. Details die am Ende nicht auffallen, und dann doch viel Zeit benötigen. Denn wenn Sie Schränke stehen könnte man meinen, jetzt sind sie ja schnell fertig geworden. Dann kommt das Fein-Tuning, das dauert doch noch. Aber dafür sieht es einfach gut aus im Anschluss. Nun wird noch gesaugt und gefegt und dann sind wir auch schon wieder weg.

Schuhschrank als Einbauschrank

Schuhschrank als Einbauschrank, bis zur Decke und zur Tür

Schuhschrank geoeffnet

Schuhschrank geoeffnet, Platz für Schuhe in den Klappen, trotz nur 20cm Tiefe

Telefonschrank mit Stauraum

Telefonschrank mit Stauraum und verdeckter Kalbeführung

Telefonschrank mit Stauraum

Telefonschrank mit Stauraum, Türen geöffnet

Viel Freude mit Ihren neuen Möbeln

Gerne machen wir von Ihren neuen Möbeln auch noch Fotos in Ihrer Wohnung, denn somit können wir auf unserer Internetseite von immer neuen Projekten berichten und diese auch durch die Fotos zeigen. Denn ausser den Fotos und Zeichnungen haben wir nachher leider nichts mehr von den neuen Möbeln. Damit auch weitere Interessenten sehen können, was wir so alles bauen können sind die Fotos ein wichtiger Bestandteil der Arbeit für uns.

Wie können Sie denn nun selber an neue Möbel kommen?

Rufen Sie uns einfach an oder schicken Sie uns eine E-Mail: 02045 4757 oder info@innenausbau-binder.de

Erzählen Sie uns von Ihrem Raum und Ihren Wünschen, dann können wir Termine vereinbaren und für Sie auch Lösungen entwickeln.

Ihre Tischlermeister Jan Binder + Julia Behrendt

Experten für den Möbelbau und optimalen Stauraum